다차에 직접 만드는 나무 가제보: 이 글에서는 다양한 변형과 해석을 담은 사진을 제공합니다. 다차에 가제보를 짓기로 결정할 때는 현장의 모든 치수, 자재의 너비, 그리고 사용 가능한 도구의 한계까지 항상 다시 한번 확인하는 것을 잊지 마세요.
정자는 여름 별장에 꼭 필요하고 중요한 요소입니다. 정자는 공간을 더욱 따뜻하고 아늑하게 만들어 가족과 함께 다차에 더 자주 가고 싶게 만듭니다. 저희는 여름 별장에 적합한 목조 정자 옵션 중 하나를 시공하는 구체적인 단계를 설명하는 도면을 제공합니다. 다음 사항을 미리 고려해 보세요. 다차의 점을 쉽게 없애는 방법.
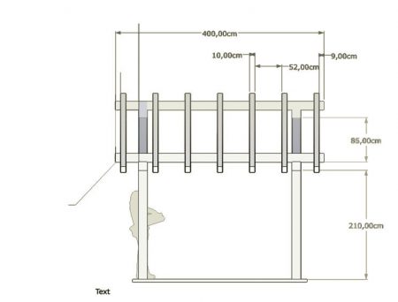
우리는 나무로 정원 전망대를 만들고 있습니다.
- 공사를 위해 선택한 구역을 정리하세요. 나중에 더 어려워질 수 있으므로 공사 과정 초기에 그루터기와 걸림돌을 제거하세요.
- 직접 계획을 세워보세요. 제공된 계획은 약 15명을 수용할 수 있는 정자를 기준으로 작성되었습니다.
- 기초를 위한 장소를 표시하고, 필요한 크기의 구멍을 파고, 거푸집을 만듭니다.
- 가제보는 야외 공간이지만, 그 구조는 여전히 튼튼해야 합니다. 비바람으로부터 보호되어야 하고, 일 년 내내 야외에 있어야 하기 때문입니다.
- 지지하는 수직 프레임을 설치한 후 바닥 보를 설치합니다. 수직 구조물을 연결하는 데 특수 장선을 사용하고, 전체 구조물을 판자(일반 마루판 사용 가능)로 덮습니다.
- 다음으로, 침투성이 강한 프라이머를 사용하여 목재에 프라이머를 칠합니다. 그 후, 원하는 색으로 나무 가제보를 칠할 수 있습니다. 요즘 파스텔 색상이 유행이지만, 그렇다고 해서 가제보 가격이 낮아지는 것은 아닙니다. 직접 해보세요 나무의 색은 빨간색, 초록색, 주황색으로 만들면 달라집니다.
- 가제보는 매년 새로 칠하는 것이 좋습니다. 이렇게 하면 습기로부터 보호하고 긴 겨울을 견뎌낸 구조물을 튼튼하게 만들 수 있습니다. 매년 페인트칠을 하면 구조물의 전체 수명을 연장할 수 있습니다.
- 지붕은 평평하게 만들고 가볍게 단열하는 것이 가장 좋습니다. 어떤 지붕재든 사용할 수 있지만, 빗물이 원활하게 배수되고 지붕에 고이지 않도록 하는 것이 중요합니다. 이를 위해 간단한 홈통을 사용합니다.
- 어떤 사람들은 정자 옆에 최대 70cm 깊이의 구덩이를 파고, 그 아래에 쇄석을 부어 인공 배수로를 만들어 폐수를 배출합니다.
- 정자가 완성되면 테이블과 의자, 바비큐, 그리고 평범한 나무 구조물을 아늑하고 아름다운 여름 별장으로 바꿔주는 기타 액세서리를 설치할 수 있습니다.
조언! 이 계획에 따르면 정자는 개방형입니다. 엿보는 눈으로부터 보호받고 싶다면 추가적인 아늑함을 만들어내다특수한 천막이나 가벼운 얇은 명주를 사용할 수 있습니다.
이것들이 기본적인 시공 단계이지만, 작업을 시작하기 전에 DIY 목조 정자의 도면과 사진을 구해야 합니다. 다음으로, 구조물에 필요한 자재의 양을 계산하고, 모든 치수를 다시 확인하고, 모든 것을 다시 계산합니다. 그런 후에야 구조물 자체를 짓기 시작할 수 있습니다. 처음부터 올바른 접근 방식을 사용했다면, 당신의 목조 정자가 멋지고, 아늑하고, 아름다워질 것이라는 것은 의심의 여지가 없습니다.
다차에 나무 가제보를 만드는 방법은 다양합니다. 사진이 도움이 될 수 있습니다. 먼저 구조물 사진을 보고 마음에 드는 유형을 선택한 후, 나만의 디자인을 찾아보세요. 이 자료에서 제공하는 다양한 설계도를 통해 원하는 아이디어를 얻을 수 있을 것입니다. 혹시 확신이 서지 않는다면, 매장에서 조립식 나무 가제보를 구매하실 수 있습니다. 가제보가 집에 도착하면 조립만 하면 가족과 함께 따뜻하고 아늑한 다차의 밤을 즐길 수 있습니다.
