
감자 파종기는 수동식과 2열식 등 다양한 종류가 있습니다. 이 기계를 사용하면 넓은 면적에 감자를 빠르고 쉽게 파종할 수 있습니다. 농업 현장에서 필수적인 기계입니다.
감자 파종기는 정원사의 작업을 더욱 편리하게 해주는 도구로, 감자를 심기 위해 설계되었습니다. 수동식과 2열식 등 다양한 디자인으로 출시되며, 보행형 트랙터에 맞는 파종기를 직접 제작할 수도 있습니다. 이 도구를 사용하면 넓은 면적에 감자를 빠르게 심을 수 있습니다.
감자 심는 기계의 목적과 작동 방법
보행식 트랙터 감자 파종기든 다른 유형이든 모든 감자 파종 장비는 같은 목적을 가지고 있습니다. 봄철 파종 과정을 용이하게 하고 거의 완전히 자동화합니다.
화분의 기능:
- 파종을 위한 써레 만들기;
- 괴경을 위한 구덩이 파기;
- 괴경을 구멍에 분류합니다.
- 구멍을 채우다;
- 토양 비료 공급(선택 사항)
- 착륙 행 생성(선택 사항).
장치의 장점:
- 감자 심기 속도를 몇 배로 높이다.
- 완벽하게 균등한 행을 만들 수 있습니다.
- 최적의 깊이에 괴경을 심습니다.
- 사람의 신체적 스트레스를 줄인다.
- 씨앗을 심는 동시에 토양에 비료를 줄 수 있습니다.
유일한 단점은 기기가 크고(수동으로 작동하기 어려움) 완제품 가격이 높다는 것입니다. 하지만 브랜드 제품을 구매할 여유가 없다면, 두 번째 방법도 있습니다. 바로 직접 수동 감자 심는 기계를 만드는 것입니다.
장치 유형
다음은 감자를 빠르게 심는 데 사용되는 단위 유형입니다.
- 보행형 트랙터용 감자 심는 기계;
- 미니 트랙터용 감자 심는 기계
- 수동 감자 심기 기계.
이 분류는 장치 제어 장치의 장착 방식에 따라 달라집니다. 워크 비하인드 트랙터나 미니 트랙터에 부착된 장치는 자동으로 작동할 수 있습니다. 장비를 원하는 방향으로 향하게 하기만 하면 됩니다(일부 차량은 자동으로 조정되어 사람의 개입 없이 감자 파종을 진행할 수 있습니다). 수동 파종기는 농기계에 부착하지 않고 수동으로 작동해야 한다는 점에서 구분됩니다.

소규모 농장에는 수동 방식이 가장 좋습니다. 넓은 면적에 파종해야 하는 경우, 워크 비하인드 트랙터나 미니 트랙터에 연결된 장치를 선택하는 것이 좋습니다. 미니 트랙터는 짧은 시간에 더 넓은 면적을 파종할 수 있습니다. 넓은 면적을 저렴하게 경작하려면 워크 비하인드 트랙터용 DIY 감자 파종기가 적합합니다.
수동 감자 심는 기계 작동 원리 – 영상:
또한, 단위는 동시에 파종되는 행의 수에 따라 구분됩니다.
- 단일 행 단위;
- 이중줄 감자 심는 기계.
2줄형은 감자를 2줄로 심을 수 있어서 사용하기 편리합니다(줄 사이의 거리는 조절 가능하며, 약 70cm).
마지막 구분은 제조 방법에 따라 다릅니다. 기성품을 구입할 수 있습니다. 기성품 화분의 가격은 7,000~8,000루블부터 시작합니다. 비용을 절감해야 한다면, 원하는 사양에 맞춰 직접 제작한 감자 화분을 사용해 보세요. 직접 만드는 방법은 아래에 설명되어 있습니다.
완성된 모델에 대한 간략한 개요
예산이 허락한다면 기성품을 구입하는 것이 항상 더 좋습니다. 기성품은 디자인도 더 예쁘고, 내구성도 더 좋으며, 보증이 제공될 수도 있습니다. 또한, 중요한 추가 기능도 갖추고 있는 경우가 많습니다. 가장 일반적인 감자 파종기 모델에 대한 설명은 다음과 같습니다.
감자 심는 기계 KS-1A
10마력 이상의 워크 비하인드 트랙터(즉, 대형 워크 비하인드 트랙터)용으로 설계되었습니다. 차체는 밝은 빨간색, 프레임은 검은색입니다. 가격은 8,000~8,500루블입니다.
간략한 특징:
- 무게는 33kg입니다.
- 최대 34리터의 괴경을 담을 수 있습니다.
- 시간당 최대 0.5헥타르를 처리할 수 있습니다.
화분이 모터 장치에 부착되어 있음에도 불구하고, 작은 밭이나 여름 별장에 최적인 것으로 간주됩니다.
감자 심는 기계 KC – 1
이 제품의 가격은 12,400루블로 이전 제품보다 높습니다. 대량 구매 시 비용을 절감할 수 있습니다.
가격이 오른 것은 기계 무게가 25kg에 불과해 가볍기 때문입니다. 그러나 생산성은 KS-1A의 절반 수준인 시간당 0.2헥타르에 불과합니다. 이 기계의 주요 목적은 여름 별장과 농경지의 작은 면적을 경작하는 것입니다.
시트 소재로 만들어졌습니다.
감자 심는 기계 KCM – 1
제품 가격은 9,300루블입니다. 다음 워크비하인드 트랙터에 적합합니다.
- 빔;
- 종속;
- 네바;
- 오카.
마운트가 적합하다면 다른 블록에 부착할 수 있습니다.

간략한 특징:
- 무게 33kg;
- 처리 속도 – 시간당 0.25ha
- 감자 34리터를 담을 수 있습니다.
이 버전은 KS-1A와 실질적으로 다르지 않습니다.
감자 심는 기계 KCM-1A
KSM-1A는 워크 비하인드 트랙터에도 장착할 수 있습니다. 중장비 및 중장비(10마력 미만) 모두에 적합합니다. KS 시리즈의 다른 모델과 마찬가지로, 독특한 빨간색 차체가 특징입니다.
무게는 33kg에 불과하고 34리터 탱크 용량을 자랑하며, 시간당 최대 0.25헥타르를 처리할 수 있습니다. 소규모 농장에 적합합니다.
감자 심는 기계 KCT – 1T
미네랄 비료를 살포할 수 있는 탱크가 잘 갖춰져 있습니다. 다른 모델과 마찬가지로 소규모 경작에 적합합니다. KS 시리즈의 다른 모델과 달리 밝은 파란색으로 도색되어 있습니다.
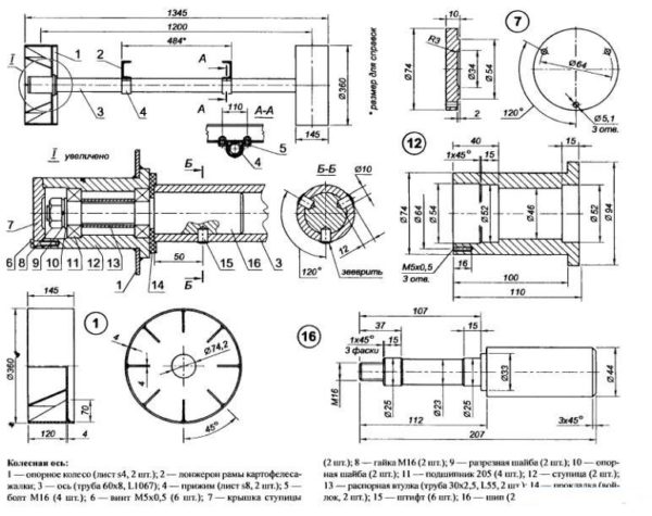
자신의 손으로 유닛을 만드는 방법
일반 폐금속을 이용해 수제 감자 화분을 만들 수도 있지만, 새 재료를 사용하는 것이 더 좋습니다.
이 장치는 미니 트랙터용 DIY 감자 심기나 워크비하인드 트랙터용 감자 심기 등 다양한 버전으로 만들 수 있습니다. 가장 인기 있는 옵션은 수동식입니다. 비용이 저렴하고 추가 고가 장비가 필요하지 않습니다. 하지만 이 장치로 감자를 심으려면 두 사람이 필요한 경우가 많습니다(위 참조). 덩이줄기를 운반용 망에 계속 넣어두어야 하는데, 그렇지 않으면 장치가 완전히 비게 됩니다. 장치 유지 관리에는 많은 노력이 필요합니다.
그렇다면 직접 유닛을 만드는 방법은 무엇일까요? 다음과 같은 재료가 필요합니다.
- 감자통 합판;
- 목재 처리(함침, 방부)를 위한 건조유 또는 기타 조성물
- 철근;
- 강판;
- 금속 모서리;
- 채널;
- 바퀴 축.
또한, 보행형 트랙터용 좌석을 만들 경우 발포 고무, 합성 패딩, 천 또는 인조 가죽 등 좌석 재료가 필요합니다. 나무 탱크 내부에도 고무 패드가 필요합니다. 이렇게 하면 씨앗과 탱크 사이의 마찰을 완화하여 덩이줄기 손상을 방지할 수 있습니다.
먼저, 통을 만듭니다. 합판, 솔, 목재용 스테인, 그리고 앵글 철이 필요합니다. 금속 앵글 철은 통을 고정합니다. 통을 기울여 덩이줄기가 점차 디스펜서로 흘러들어가고, 거기서 양동이로 파낸 구멍으로 흘러들어가도록 합니다.
탱크를 설치한 후에는 주요 프레임을 제작해야 합니다. 프레임은 강철이어야 합니다. 그렇지 않으면 덩이줄기 무게로 인해 처지거나 지속적인 습기로 인해 썩을 수 있습니다. 탱크는 프레임(위)에 부착되며, 부착 전에 미리 페인트칠을 해야 합니다.
리퍼는 별도로 제작됩니다. 파이프와 스파이크, 그리고 바퀴 축으로 구성됩니다. 리퍼는 장비 전면에 위치하여 구덩이 파기를 위한 토양을 준비합니다.
이 단원의 다른 필수 부분:
- 괴경을 고정하기 위해 사슬과 그 위에 장착된 돌출부로 만들어진 괴경 운반 벨트.
- 허브가 있는 강철 시트 휠;
- 강판용 고랑 커터;
- 경사면에서 주행하기 위한 전면 및 후면 균형추.
모든 부품은 다른 방법으로 고정하는 대신 용접해야 합니다. 앵글을 사용할 경우 큰 볼트 사용이 허용됩니다.
기계가 핸드헬드가 아니라 워크비하인드 트랙터에 부착된 경우, 좌석이 필요합니다. 좌석은 내구성이 뛰어나야 하며, 금속 받침대가 있는 것이 좋습니다. 합판 한 장을 천으로 덮고, 천과 받침대 사이에 부드러운 재질을 넣습니다.
수제 화분 리뷰
Vitaly Ts., 49세, 농업 노동자:
"일을 좀 더 편하게 하려고 감자 심는 기계를 직접 만들었어요. 전체 비용은 약 2,000루블 정도 들었고요. 결과물에 아주 만족해요. 수동 버전도 만들었어요. 손으로 심는 건 이동식 트랙터나 트랙터를 사용하는 것만큼 편리하지는 않지만, 가격 대비 훌륭한 "공예품"이에요. 고르게 심고, 모판 간격도 조절할 수 있었어요."
예브게니 F., 30세, 기업가:
"저는 매년 농장에 감자를 심습니다. 예전에는 심는 데 많은 인력을 고용해야 했는데, 비용이 많이 들었죠. 하지만 간단한 파종기를 직접 용접하고 나니 비용이 10분의 1로 줄었습니다. 이제 두 명의 작업자가 하루에 밭 전체에 감자를 심을 수 있습니다."
아파나시 K., 52세, 야채 재배자:
"건강 때문에 더 이상 직접 구부리고 고랑을 파는 게 어려워서 감자 심는 기계를 만들었어요. 임시 재료를 사용했기 때문에 거의 비용이 들지 않았어요. 기계를 효과적으로 옮기려면 많은 노력이 필요하지만, 그래도 직접 구멍을 파는 것보다는 훨씬 쉽죠."
직접 만들거나 기성품을 구매하든 감자 심는 기계는 덩이줄기 심는 과정을 크게 간소화합니다. 따라서 모든 농부, 대규모 감자 밭 소유주, 그리고 농업 사업가라면 감자 심는 기계를 직접 구입하거나 만드는 것이 좋습니다.

정원에 맞는 톱을 선택하는 방법: 모든 정원사가 알아야 할 모든 것
로봇식 잔디 깎는 기계: 이 자동 도우미에게 잔디를 맡겨도 될까요?
어떤 정원 호스가 가장 좋을까요? 고려해야 할 모든 측면
전기식 트리머 vs. 가솔린 트리머: 마당에 적합한 것은?