요즘 시골집을 짓는다면 사우나는 필수입니다. 사우나가 있는 곳에는 방을 빠르게 데우고 지글지글 끓는 증기를 내는 난로가 필수적입니다. 기성 설계도를 사용하여 물탱크가 있는 금속 사우나 난로를 만드는 것은 어렵지 않습니다. 다양한 옵션이 있지만, 여름 별장 주인들은 대부분 금속 난로를 선택합니다. 굳이 살 필요 없이 직접 만들 수 있습니다. 재료는 쉽게 구할 수 있고, 기술도 이해하기 쉬워 기술 지식이 부족한 사람이라도 쉽게 이해할 수 있습니다.
오늘날의 금속 사우나 스토브는 현대적 요구 사항에 따라 안전한 것으로 간주되며 이전 스토브보다 더 실용적입니다.
이 제품들은 4mm 두께의 금속판으로 제작되었습니다. 새로운 모델에는 열을 오랫동안 유지하는 돌로 채워진 특수 칸막이가 포함되어 있습니다. 거의 모든 모델에 다양한 용량의 물탱크가 설계되어 있습니다. 물탱크가 있는 스토브를 만드는 것은 스팀룸에서 최상의 편안함을 얻는 꽤 일반적인 방법이 되었습니다.
스토브는 다양한 디자인을 가지고 있으며, 장인은 항상 사우나의 구조를 고려하여 여러 개의 투사도를 사용하여 맞춤 설계도를 제작합니다. 그녀의 모델은 폐쇄형과 개방형, 두 가지 유형의 스토브 디자인을 제시합니다.
폐쇄형 용광로
폐쇄형 스토브는 크기가 작아 가족용 사우나에 이상적입니다.
열 용량을 늘리려면 내부와 외부 모두에 내화벽돌을 깔고, 벽돌은 금속 패스너로 고정하는 것이 좋습니다.
벽돌 라이닝은 석탄 연소를 가능하게 하는 반면, 기존 설계는 석탄의 열을 견디지 못해 나무로만 연소할 수 있습니다. 벽돌 라이닝을 적용한 화실은 내화 강철로의 수명을 크게 연장합니다.
돌을 위한 격자는 구조적으로 오븐 중앙에 포함되어 있습니다.
사람들이 우연히 불타는 금속 표면에 닿지 않도록 보호하기 위해 스팀룸을 향한 면은 벽돌로 안감 처리해야 합니다.
사우나 스토브와 벽돌은 스팀룸에 멋진 분위기를 더해 독특하고 아늑한 분위기를 더합니다. 스팀룸에 히터를 적절하게 배치하면 열 보존, 뛰어난 난방 효과, 그리고 부드러운 스팀 효과를 얻을 수 있습니다.
개방형로
개방형 스토브의 가장 큰 특징은 작은 탱크입니다. 히터도 열린 상태로 유지됩니다. 이러한 난방 장치를 스팀룸에 설치하면 방 전체를 효과적으로 난방할 수 있습니다. 간단한 방법으로 열 용량을 높일 수 있습니다. 난방 장치를 설치할 때, 돌을 주기적으로 덮을 수 있도록 아연 도금 덮개를 설치하면 됩니다.
이 사우나 히터의 특징은 용접 금속 접합 방식입니다. 사진과 도면을 참고하시면 용접을 사용하여 물탱크가 있는 금속 사우나 스토브를 만드는 데 도움이 될 것입니다.
고품질 용접을 할 수 있는 숙련된 용접기와 숙련된 용접공이 필요합니다. 도면에 명시된 자격을 갖춘 전문가가 보일러 주철로 탱크를 용접하고, 꼭 맞는 뚜껑과 특수 설계된 수도꼭지를 장착합니다. 수도꼭지와 뚜껑 구멍은 탱크를 쉽게 청소할 수 있어야 합니다.
배수 밸브 설치의 비결은 다음과 같습니다. 밸브 입구는 탱크의 가장 낮은 지점에 맞춰 잘라야 합니다. 탈착식 밸브를 부착하는 피팅은 탱크에 직접 용접되어 있습니다. 이렇게 하면 밸브를 정기적으로 청소할 수 있습니다. 볼 밸브를 사용하는 것이 좋습니다.
복합 설계 용광로
복합 스토브 설계의 경우, 댐퍼 두 개가 있는 연소실이 설치됩니다. 이것이 주요 특징입니다.
이 디자인에는 화격자, 지름 10cm와 14cm의 파이프, 그리고 재받이가 포함됩니다. 이 스토브 디자인은 5mm 두께의 경화 강판을 사용하여 제작됩니다. 금속 사우나 스토브를 직접 제작하고, 물탱크와 청소 중 물을 완전히 배출할 수 있는 편리한 수도꼭지를 장착할 수 있습니다.
콤비네이션 사우나 스토브는 간편하고 경제적인 옵션입니다. 나무를 태워 스팀룸에 나무 타는 향이 가득 차도록 합니다.
보시다시피, 필요한 도면과 비디오만 있다면 물탱크가 결합된 금속 사우나 스토브를 만드는 것은 그렇게 어렵지 않습니다.
또한 읽어보세요:
https://youtu.be/Ri3xGo8QyUE
사우나 스토브를 디자인할 시간입니다.
파이프나 통과 같은 특수 부품으로 만든 난로 모형은 적절한 원자재만 있다면 DIY 제작에 가장 적합합니다. 주택 건설업자는 먼저 계획된 난로가 건축 중인 목욕탕의 크기에 맞는지 검토하고, 최상의 결과를 보장하기 위해 모든 도면을 신중하게 작성해야 합니다.
난방 시스템을 설치할 적절한 위치를 선택하고 치수에 필요한 모든 구성 요소를 고려하는 것이 중요합니다.
- 화실;
- 히터;
- 화상;
- 굴뚝;
- 판막;
- 수조;
- 링 모양의 강철 커플링.
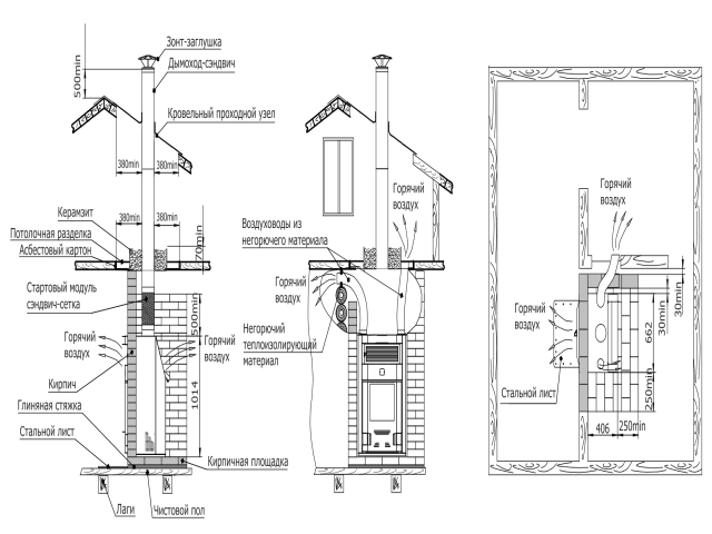
건물 지붕에는 연기 배출관을 위한 구멍을 미리 뚫어야 합니다. 따라서 난로 설계, 특히 독립적으로 제작하는 난로 설계는 목욕탕 설계와 동시에 고려해야 합니다.
다양한 형태
스팀룸의 모양은 난방 성능, 사용 편의성, 디자인 문제를 결정하는 중요한 요소입니다.
다양한 모양의 용광로 설계가 사용됩니다.
- 직사각형;
- 수평의;
- 원통형의;
- 곱슬곱슬한.
직사각형 난방 장치는 사용하기 더 편리한 것으로 알려져 있습니다. 그 비결은 작동 중 모서리 부분이 뜨거워지지 않아 전체 구조가 오랫동안 형태를 유지한다는 것입니다. 스토브의 모양은 긴 수명 외에도 균일한 난방을 보장하고 벽 전체로의 열 전달을 줄입니다. 이를 통해 방 전체의 최대 난방을 보장하고 열 흐름의 균일한 균형을 유지합니다. 적절한 난방은 스토브의 수명을 늘리고 모서리는 높은 기계적 안정성을 보장합니다.
원통형이나 원형 용광로 구조물은 고온을 견디는 데 가장 취약합니다. 따라서 장인들은 벽에 더 조밀하고 강화된 재료를 사용합니다.
목욕탕에 난로 설치하기
사우나 스토브는 화실 문이 옆방을 향하도록 설치하거나, 나무를 보관하는 스팀룸에 직접 설치합니다. 스토브 모델을 선택할 때 설계 단계에서 이러한 점을 고려하는 것이 중요합니다.
금속 난방 장치 설치의 첫 단계는 기초를 놓는 것입니다. 이 작업은 내화성이 뛰어난 벽돌을 고품질 콘크리트 모르타르로 접합하여 진행합니다.
벽돌은 여러 줄로 쌓아야 합니다. 난로 본체에 벽돌을 덧대지 않을 경우, 벽에서 최소 1미터 떨어진 곳에 설치해야 합니다. 모든 설치 조건은 설계자 또는 시공자가 목욕탕 시공 전 단계에서 작성한 도면에 포함되어 있습니다.
스토브는 완전히 경화된 후에만 기초 위에 설치합니다. 이는 금속 구조물을 설치하기 위한 필수 조건입니다. 사우나 건물이 주거용 건물과 분리되어 있는 경우, 건물 크기가 작아 온도 변화에 취약합니다. 따라서 내구성과 내한성이 뛰어난 얕은 기초를 사용합니다.
난방 장치를 설치할 벽 근처의 부분을 호일로 덮은 단열재로 덮는 것이 좋습니다. 이렇게 하면 열 반사 효과가 더 커지고 건물 화재로부터 보호 효과가 뛰어납니다.
이는 돌로 안감 처리되지 않은 금속 구조물에만 적용됩니다.
설계상 스토브 구조물을 벽에 조금 더 가깝게 배치해야 하는 경우, 벽돌 외장은 필수 화재 안전 요건입니다. 금속 스토브를 벽돌로 외장하는 경우, 외장 치수는 높이 120mm, 너비 80mm를 유지해야 합니다. 이 치수를 초과하면 벽돌이 가열되는 데 시간이 오래 걸려 스팀룸에 충분한 열을 공급하지 못합니다. 이러한 세부 사항은 도면에 항상 표시되어 있으며, 금속 사우나 스토브 제작 설명서 사진에서도 확인할 수 있습니다. 벽돌 외장은 추가적인 작동 안전성을 보장하고 실내에 미적인 외관을 더합니다.
굴뚝 건설의 중요 포인트
금속 난방 시스템에는 단열이 잘 된 굴뚝이 있어야 합니다. 이러한 시스템의 경우, 외벽과 내벽 사이에 특수 단열층이 있는 샌드위치 파이프를 사용하는 것이 좋습니다.
천장 통과 장치는 천장과 파이프의 연결부에 설치되어 연소 생성물이 빠져나갈 수 있도록 합니다.
굴뚝 예열의 비결. 금속 사우나 스토브에는 철제 굴뚝이 포함되어 있으며, 특수 파이프를 사용하여 용접됩니다. 차가운 사우나실에서 스토브에 불을 붙일 때 종종 연기가 나고 점화가 잘 되지 않는 것을 경험하게 됩니다. 이를 방지하려면 굴뚝을 예열하고, 화실에서 얇은 불쏘시개만 최소 0.5시간 동안 태운 후, 정기적으로 불쏘시개를 사용하는 것이 좋습니다.
수직 및 수평 사우나 스토브
수직 및 수평 등 다양한 화실 위치를 이용해 금속 구조물을 독립적으로 건설할 수 있습니다.
수평 연소실은 탱크가 있는 용광로의 구조에 포함되고, 수직 연소실은 대구경 파이프로 만든 용광로의 구조에 포함됩니다.
튜브형 용광로는 고온에 더 강하고, 탱크형 용광로보다 타버리는 양이 적어 수명이 더 깁니다.
스토브 난방을 사용하면 스팀룸의 습도와 온도를 조절할 수 있으며, 자작나무, 참나무, 침엽수 등 단일 종류의 장작을 사용하면 나무를 태울 때 나오는 공기가 신체에 확실히 유익합니다.
온수 탱크와 포켓 히터가 장착된 사우나 스토브는 모든 사우나실에 편안한 분위기를 조성하며, 직접 제작한다면 외부 디자인이 개인 취향을 반영하는 독특한 하이라이트가 될 수 있습니다. 팁, 비디오, 도면을 참고하여 직접 제작해 보세요.
