시골집 소유주들은 종종 맞춤형 목욕탕 건축 문제에 직면합니다. 별도의 세면실과 스팀룸을 갖춘 목욕탕을 계획하는 것은 중요한 결정이며, 청사진과 단계별 지침을 면밀히 검토해야 합니다. 이러한 구조물의 규모는 일반적으로 작은 부지에서도 건축이 가능합니다. 본격적인 면적에 대해 이야기한다면, 예를 들어 다락방이 있는 6x6 목욕탕을 짓기 위해 특별한 건물에 본격적인 공간을 할당할 수 있습니다.
최소 계획에 포함해야 할 사항
목욕탕 건설을 위해 계획된 공간의 규모와 관계없이, 전통적인 방의 존재 여부를 고려해야 합니다. 여기에는 한증막, 세면실, 그리고 한증막 사용 사이의 휴식 공간이 포함됩니다.
좋은 6x6 사우나 레이아웃은 구조물의 전반적인 안정성과 의도된 기능에 매우 중요합니다. 설계 오류는 대개 오래가지 않습니다. 이러한 오류의 부정적인 영향은 빠르면 다음 시즌부터 나타날 수 있습니다.

모든 사우나 사용자는 증기를 오랫동안 유지하는 따뜻하고 빠르게 가열되는 스팀룸, 화장실의 최적 온도, 그리고 중단 없는 물 공급을 기대합니다.
잘 고안되고 세심하게 지어진 목욕탕의 특징은 전체 구조와 각 방의 견고함입니다. 세면실과 스팀룸이 분리되어 있다면, 전체 디자인을 재검토하고 추가적인 보강 방안을 고려해야 합니다.

소규모 프로젝트를 개발할 때는 건물 경계 밖에 개별 공간을 분리하는 것이 매우 실용적입니다. 예를 들어, 시골집에서는 목욕탕 밖에 휴식 공간을 만들거나 비슷한 공간들과 결합하는 것이 쉽습니다.
나만의 집을 계획하는 건 두렵지 않아요. 기존 디자인을 활용하거나 직접 만들어서 실험해 볼 수도 있죠.
여름 별장 부지에 목욕탕을 짓는 것을 고려할 때, 대개 대지 면적이 제한적일 것이라고 예상하게 됩니다. 그러나 3x4(3x5) 구조의 목욕탕은 매우 컴팩트하며, 실제로 가장 널리 사용됩니다.
시골집을 위한 목욕탕 프로젝트
새로운 스팀룸을 설치하려면 빈 공간을 선택해야 합니다. 부지 배정에 대한 구체적인 기준은 소유주가 단독으로 결정합니다.
예를 들어, 감기에 걸리기 쉬운 사람들은 목욕탕을 주거용 건물에 가깝게 짓는 것을 선호합니다.
사람이 엔지니어처럼 생각한다면 기술적인 문제에 관심을 가질 것입니다. 예를 들어, 공급 파이프라인이나 가스 본관을 가장 편리하게 연결하는 방법에 관심이 있을 것입니다.
동시에, 목욕탕이 소변을 보는 장소(물론 정화조가 있는 경우는 제외)나 쓰레기 구덩이 근처에 위치하는 것은 바람직하지 않습니다.
사용자들은 종종 필요한 수준의 열과 증기 단열을 보장하기 위해 본관 옆에 목욕탕을 설치하는 것을 선호합니다.

사우나 부지를 계획하는 또 다른 방법은 지질 조사 데이터를 기반으로 합니다. 물론, 4x6 사우나 레이아웃에 배수 시설을 포함하면 토양 품질 요건이 그렇게 엄격하지 않을 수 있습니다.

전통적인 프로젝트에는 전용 하수 시스템 구축이 포함되지 않는 경우가 많습니다. 이 경우 강화된 기초를 계획하고 지하수위가 낮은 위치를 선택합니다.
습기가 쌓이기 쉬운 공간은 일반적으로 5x6 설계에서 제외됩니다. 단, 다음과 같은 물체는 프로젝트에서 멀리 두어야 합니다.
- 우물로부터 – 최소 5미터
- 화장실과 쓰레기통으로부터 최소 8미터 거리
- 주거용 건물로부터 – 최소 8미터.
정말 운이 좋아서 집이 물가에 가깝다면, 물가에 접근할 수 있는 사우나를 짓는 것이 좋습니다. 이렇게 하면 수영장을 따로 계획하고 설치할 필요가 없고, 스팀룸을 사용한 후 바로 시원한 호수에 몸을 담글 수 있습니다.
부지가 물 가까이에 위치한다는 두 번째 장점은 자율적인 물 공급을 조직할 수 있다는 것입니다.
위치가 결정되면 이제 디자인 자체를 고려해야 합니다. 계획에는 방의 개수와 용도, 스팀룸과 화장실의 크기, 추가 공간의 존재 여부, 층수 등의 요소가 포함됩니다.
일반적인 생각과는 달리, 목욕탕 설계는 비용이 많이 듭니다. 건설 회사에서 시공 도면을 구매하는 경우라면 더욱 그렇습니다. 하지만 템플릿을 사용하는 것을 막을 사람은 없습니다. 이 글에서는 기능적 요소에 대한 레이아웃 계획을 직접 개발하는 데 도움이 되는 필요한 도면과 다이어그램을 제공합니다.
예를 들어, 6x4 욕실 배치는 욕실과 스팀룸이 따로 또는 인접하게 위치하는 다른 규모의 프로젝트에서 비례적으로 쉽게 파생될 수 있습니다.
또한 읽어보세요:
러시아 목욕탕의 필수 요소로서의 대기실
이러한 방의 주요 기능은 스팀룸과 거리로 나가는 출구 사이에 공기 간격을 만드는 것입니다.
디자인에 이러한 공간이 없다면 스팀룸이 빨리 식어 사용자에게 불편함을 줄 수 있습니다. 별도의 화장실과 스팀룸을 갖춘 3x4 구조의 사우나라도 필요한 모든 공간을 충분히 확보할 수 있습니다.
탈의실은 자본 구조의 한 요소입니다.
대부분 이 공간은 두 개의 문이 있는 작은 통로로 되어 있습니다. 하나는 거리로 바로 이어지고, 다른 하나는 세면실로 이어집니다.
현관에는 휴식을 위한 테이블, 옷 보관함, 또는 식물 건조대가 비치되는 경우가 많습니다. 넓은 욕실을 설계할 때는 현관과 휴식 공간을 결합하는 것이 일반적입니다.
이렇게 하면 밀폐 상태가 유지되어 두 가지 기능을 동시에 수행할 수 있는 적당한 크기의 공간이 만들어집니다. 겨울철 사우나를 임시 휴게실로 사용할 때는 현관과 휴식 공간을 함께 사용하는 것이 실용적입니다.
세탁실 및 스팀룸: 계획 기능
물론 교외 지역 부동산 소유주들이 목욕탕 설계의 제작 및 후속 개발을 직접 경험하는 경우는 드뭅니다. 경험이 풍부한 사람이 부지 측량 및 설계 검토에 참여하면 도움이 됩니다. 하지만 목욕탕 시공 기준을 준수하면 설계 범위가 제한적이기 때문에 발생할 수 있는 오류에 대해 걱정할 필요가 없습니다.
세탁실과 스팀룸의 배치, 크기, 위치는 많은 어려움을 야기합니다.

시공 공간이 제한적이라면 이러한 공간은 더 작아야 합니다. 반면, 사우나 프로젝트를 계획 중이라면 빠른 예열이 보장되므로 인테리어 디자인과 적합한 자재 선택에만 집중하면 됩니다.
전문가들은 건설 협동조합이나 친구 집 등 이미 완료된 프로젝트를 방문해 볼 것을 권장합니다.
낮은 온도와 많은 양의 뜨거운 증기가 필요한 순수한 러시아식 바냐를 좋아하는 사람이라면 세면실과 증기실을 결합한 디자인을 고려하는 것이 가장 좋습니다.
이 프로젝트는 귀중한 공간을 절약하여 한정된 구역에서 장미 정원이나 채소 작물을 재배할 수 있게 하므로, 그 목표는 매우 정당합니다.
별도의 세면실과 스팀룸을 갖춘 3x5 욕실 레이아웃: 자세한 질문
한편으로는 목욕탕 설계가 특별히 어렵지 않아 보입니다. 하지만 준비 작업에 많은 시간이 소요될 수 있다는 점을 명심해야 합니다. 여기에는 지형, 토양 상태, 그리고 계절 변화에 따른 지하수 변화를 연구하는 것이 포함됩니다. 목욕탕에 적합한 기초를 선택하는 것 또한 매우 중요합니다.
3x5 크기는 건축 예산과 공간이 제한적임을 즉시 시사합니다.
누구나 값비싼 건축 자재 없이도 튼튼한 목욕탕을 원합니다. 현대식 건축 자재 매장에서는 오랫동안 기다려온 목욕탕의 기초 공사에 필요한 다양한 자재와 기술 장비를 제공합니다. 사용자는 스트립 기초 또는 파일 기초 중에서 선택할 수 있습니다. 특히 욕실과 스팀룸이 함께 있는 통나무로 지을 경우, 목욕탕의 전체 무게가 최소화된다는 점을 명심하는 것이 중요합니다.

방과 배치가 계획되면 필요한 모든 공공 시설의 경로를 계획해야 합니다. 이는 종종 자체적으로 상수도를 설치하면 간소화됩니다. 하지만 현대 기술 덕분에 우물에서부터 시작하여, 어느 곳이든 독립적으로 상수도를 공급할 수 있습니다. 목욕탕에는 필연적으로 전기가 필요합니다.
사우나를 데우는 데 사용할 연료 종류도 미리 고려해 보는 것이 좋습니다. 다양한 옵션이 있는데, 가스나 액체 연료로 작동하는 보일러를 구매할 수 있습니다.
펠릿이나 통나무를 태워 열을 발생시키는 전통적인 모델도 있습니다. 전기 보일러는 비용이 많이 들기 때문에 사우나에는 적합하지 않습니다.
여러 유형의 연료로 작동할 수 있는 복합 보일러를 설치하는 옵션도 있습니다.
모든 연결은 관련 서비스 담당자와 사전에 조율해야 합니다. 최소한 안전상의 이유로라도 조율하는 것이 좋습니다.
가구가 비치된 공간
반야는 여러 가지 특징을 지니며, 이 건물의 각 방은 항상 독특한 인테리어를 자랑합니다. 반야 건축을 계획할 때 장식, 가구, 티 테이블, 스팀룸의 벤치, 그리고 휴식 공간의 벤치는 최소한으로 고려해야 합니다.
통나무집인 경우, 입구문과 창문의 개구부 위치를 표시해야 하는데, 이는 필수적입니다.
마무리 작업 수행
여름 별장이나 시골에 목욕탕을 지을 때, 대부분의 사람들은 통나무집을 선호합니다. 통나무집은 미래 건물의 기초가 되는 조립식 구조물입니다. 당연히 통나무집에는 아직 화장실이나 스팀룸이 없습니다. 이러한 공간은 계획된 설계에 따라 기존 공간과 언제든지 분리될 수 있습니다.
사우나 내부를 목재로 마감하는 것은 이미 검증된 방법입니다. 이 천연 소재는 환경 친화적이며, 귀중한 열을 잘 보존하고 실내에 독특한 향을 더합니다. 린든, 소나무, 참나무, 사시나무, 물푸레나무, 낙엽송은 모두 실내 마감재로 적합한 재료입니다.
신랄한 나무 향이 나는 분위기 속에서 휴식을 취하고 싶은 분들은 침엽수종을 선택하는 것이 좋습니다.
프로젝트의 추가 요소 - 테라스로 나가는 출구가 있는 목욕탕
사우나를 계획할 때는 모든 것이 개인의 취향에 맞춰 조정되므로 다양한 변형이 가능합니다. 휴식 공간을 외부로 옮기는 한 가지 방법은 별도의 공간이 아닌, 꽃이나 기타 조경 요소로 장식된 작은 공간으로 만드는 것입니다. 이렇게 하면 사우나 내부 공간을 확보하고 스팀 배스 사이에 휴식을 취할 수 있는 진정으로 특별한 공간을 마련할 수 있습니다.
테라스가 있는 디자인은 야외 레크리에이션을 즐기고 아름다운 자연을 만끽하는 분들께 이상적입니다. 스팀룸과 화장실의 공간을 조금 줄여 취향에 맞게 크기를 조절할 수 있습니다.
이 프로젝트의 테라스는 울타리가 쳐진 크고 넓은 현관을 연상시킵니다. 베란다는 4x4 사우나 전체 길이와 동일하며, 너비만 차지합니다.
통나무나 목재로 만든 목욕탕의 특징
둥근 통나무나 각진 들보로 만든 고전적인 사우나입니다. 이 건축 자재들의 유일한 차이점은 목재 가공 기술입니다. 이러한 유형의 구조물은 일반적으로 통나무 프레임이나 상자 형태로 제작됩니다. 친환경 소재와 빠른 시공 시간 덕분에 이 유형의 사우나는 가장 인기가 많습니다.
이러한 건물의 소유주는 내부가 이미 목재처럼 마감되어 있어 마감 비용을 절감할 수 있습니다. 벽과 내부 공간을 제대로 밀봉하고 공공 시설을 설치하는 것만 남았습니다.
목욕탕의 벽은 화재를 예방하고 곰팡이와 기생충으로 인한 목재 손상을 방지할 수 있는 특수 화합물로 처리됩니다.
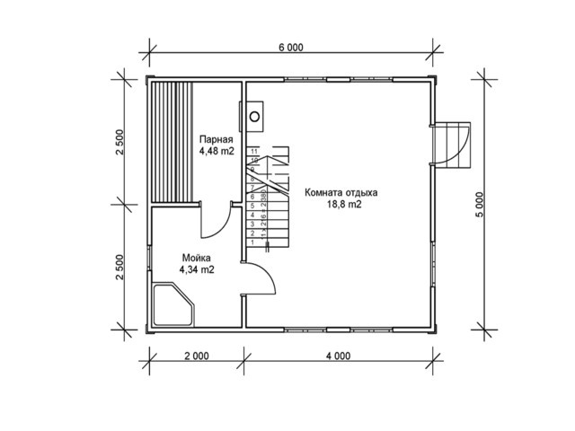
별도의 화장실과 스팀룸을 갖춘 5x6 사우나를 계획할 때는 (기사 사진 참조) 목재의 품질에 특히 주의해야 합니다. 목재는 잘 건조되어야 하며, 그렇지 않으면 시간이 지남에 따라 결함이 발생할 수 있습니다. 목재 사우나는 일반적으로 별도의 방으로 제작되며, 온라인에서 완성된 목재 사우나 사진을 많이 찾아볼 수 있습니다.
최신 건설 기술
최근 건축 기술의 발전은 목욕탕 건축에도 필연적으로 영향을 미쳤습니다. 오늘날에는 골조 공법이나 폼 블록 골조와 같은 공법이 널리 사용되고 있습니다.
프레임 사우나 시공은 현장 외 프로젝트 시공을 포함합니다. 대부분의 프로젝트는 고객의 기술 사양에 따라 제조업체의 조립 라인에서 제작됩니다.
프레임 사우나는 해체된 상태로 건설 현장으로 운반됩니다. 조립은 팀이 담당하며, 며칠 만에 작업을 완료합니다. 사우나는 무게가 가벼워 높은 기초 공사가 필요하지 않습니다. 설계 시 스팀룸 사용 시간 사이에 휴식을 취할 수 있도록 편안한 베란다나 테라스를 포함할 수 있습니다. 현재 관행상 다층 프레임 사우나 건설에 이 기술을 사용하는 것은 권장되지 않습니다.

폼 블록은 별도의 세면실과 스팀룸을 갖춘 목욕탕을 짓는 데 탁월한 솔루션입니다.
각 공간 사이에 견고한 벽을 설치하고 싶지 않다면, 강화 유리 파티션을 설치할 수 있습니다. 이렇게 하면 가족들이 스팀룸에서 즐거운 시간을 보내거나 수영장에서 아이들이 노는 모습을 지켜볼 수 있습니다.
이러한 프로젝트는 별장에 증축하는 데 적합합니다. 폼 블록은 습도가 높은 환경에서도 열을 잘 유지하는 친환경 소재입니다. 폼 블록으로 만든 구조물은 튼튼하고 내화성이 뛰어나며 연기가 나지 않습니다.
이 기술은 다층 건물 건설에 매우 적합합니다. 예를 들어, 아래층에는 별도의 방이 있는 목욕탕이 있고, 위층에는 넓은 휴식 및 오락실이 있을 수 있습니다. 폼 블록 목욕탕은 종종 상업적인 프로젝트에 특별히 사용됩니다.
부지에 사우나를 짓는 것의 장점은 부인할 수 없을 만큼 명확합니다. 개인 주택 소유자는 앞으로 온 가족이 오랫동안 이용할 수 있는 개인 청결 및 웰빙 센터를 이용할 수 있습니다. 특히 개인 사우나를 짓는 데 풍부한 경험이 있기 때문에 직접 설계하는 것은 영감을 주는 일입니다. 기존 경험을 통해 배우거나 사진과 도면을 활용하여 다락방이 있는 6x6 사우나 레이아웃을 직접 연습해 볼 수도 있습니다.
어떤 경우든 문제에 대한 철저한 접근은 올바른 길로 인도할 것입니다. 모든 건설 요소와 예산을 능숙하게 조합하면 최단 시간 내에 프로젝트를 완료할 수 있습니다.
각 객실의 크기와 배치를 고려하는 것이 특히 중요합니다. 고급 건축 자재를 사용하면 유연한 배치가 가능합니다. 예를 들어, 휴식실과 샤워실과 분리된 화장실과 스팀룸을 갖춘 사우나를 건설할 수 있습니다.
https://www.youtube.com/watch?v=T3mT_4zsgdk
